Luttekestraat 34 8011LR Zwolle
Winkelruimte te huur aangeboden op Luttekestraat 34 in Zwolle
TE HUUR: Instapklare winkelruimte aan prachtige winkelstraat in Zwolle
OBJECT:
Direct starten op een toplocatie? Dat kan in dit schitterende, monumentale winkelpand in één van de beste winkelstraten van het centrum van Zwolle. Met zijn prachtige pui en karakteristieke uitstraling trekt dit pand gegarandeerd de aandacht.
De winkel is recent volledig gerenoveerd en biedt 50 m² lichte verkoopruimte en 10 m² voor opslag/pantry. De openslaande deuren aan de achterzijde kijken uit op de binnenplaats en zorgen voor prettig licht.
Profiteer van de luxe, op maat gemaakte winkelinrichting! De hoogwaardige kastenwanden, balie en professionele verlichting zijn ter overname beschikbaar. Hiermee bespaart u aanzienlijk op opstartkosten!
Interesse in deze unieke kans? Informeer bij ons naar de overnameprijs en de mogelijkheden. We leiden u graag rond
LOCATIE /LIGGING
De Luttekestraat is een prachtige winkelstraat in het centrum van Zwolle en is een zijstraat van de Grote Markt met een diversiteit aan regionale en landelijke retailers. De Luttekestraat is het centrum van het zogenaamde Museumkwartier, en is het meest unieke en eigentijdse winkelgebied van Zwolle en ruime omgeving. Er zijn veel zelfstandige ondernemers met winkels in het midden en hoge segment in prachtige historische panden. Hierbij staan een hoge kwaliteit, gastvrijheid en een goede bereikbaarheid voorop. Mode, cultuur en horeca komen hier bij elkaar.
Enkele retailers in de directe omgeving zijn onder andere Emmely, Nikkie, Mycca Mode, de Schoenenzaak, Veenemans Juweliers, Eva en van Uffelen mode. In de nabije omgeving is een groot aantal horecagelegenheden gevestigd.
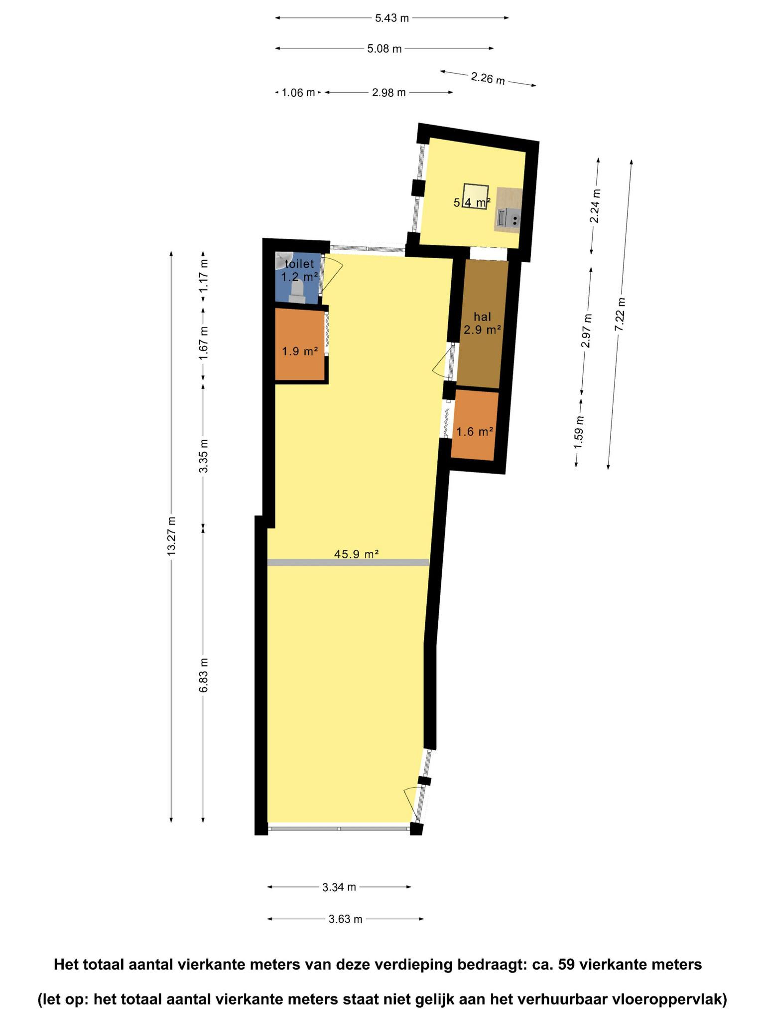
OPPERVLAKTE
Circa 60 m² winkelruimte
INDELING
Entree via portiek, royale winkelruimte met toilet, gang met toegang naar keuken (momenteel gedeeltelijk in gebruik als opslag).
BESTEMMING
Bij de gemeente Zwolle valt het onderhavige onroerend goed in het vigerende bestemmingsplan Binnenstad en omgeving. De bestemming van het perceel is: Centrum - detailhandel. U kunt het bestemmingsplan bij ons kantoor opvragen.
OPLEVERINGSNIVEAU
Het geheel wordt casco verhuurd, inclusief pui, meterkast en cv ketel. Oplevering zal plaatsvinden in de huidige staat, met o.a. de navolgende voorzieningen:
- Verwarming middels radiatoren;
- Bestaande pantry;
- Bestaand toilet;
- Bestaande wandafwerking;
- Bestaande vloerafwerking.
De op maat gemaakte kastenwanden, het ophangsysteem, balie en verlichting worden ter overname aangeboden.
PARKEERGELEGENHEID
Voldoende parkeergelegenheid in de directe omgeving (betaald).
HUURPRIJS
€ 2.400,- per maand, te vermeerderen met BTW.
SERVICEKOSTEN
Er is een vast bedrag voor levering van gas, water en elektra van € 250,- per maand, te vermeerderen met BTW.
HUURBETALING
Per maand, vooruit te betalen.
HUURTERMIJN
5 + 5 jaar
VERLENGINGSPERIODEN
Telkenmale 5 jaar
OMZETBELASTING
Er is sprake van een BTW-belaste verhuur.
AANVAARDING
In overleg, op korte termijn mogelijk.
HUURPRIJSAANPASSING
De huurprijs zal jaarlijks worden aangepast overeenkomstig de maandprijsindexering volgens de CBS-cijfers ‘’alle huishoudens’’, voor het eerst 1 jaar na huuringangsdatum.
ZEKERHEIDSSTELLING
Bankgarantie danwel waarborgsom ter grootte van 3 maanden betalingsverplichting.
HUUROVEREENKOMST
De te sluiten huurovereenkomst zal worden opgemaakt met als basis het model dat door de Raad van Onroerende Zaken is vastgesteld in 2 oktober 2012, met bijbehorende Algemene Bepalingen welke zijn gedeponeerd bij de griffie van de Rechtbank te Den Haag onder nummer 59/2012.
VOORBEHOUD
Eventuele transacties dienen ter goedkeuring voorgelegd te worden aan de eigenaar van het gebouw. Tot deze goedkeuring verleend is, zijn alle uitgebrachte aanbiedingen geheel vrijblijvend.
Voor nadere informatie en/of een bezichtiging kunt u contact opnemen met:
Rodenburg Bedrijfsmakelaars
Hanekamp 2
8023 TH Zwolle
Tel: 038 - 422 22 22
Kenmerken
| Aangeboden als | Huur |
|---|---|
| Huurprijs | € 2.400 per maand |
| Oppervlakte | 60 m² |
| Bouwjaar | 1903 |
| Gebruiksdoel | Winkelruimte |
In de buurt
De 6 meest populaire buurten in de omgeving om een winkelruimte te huren zijn: Dieze-Centrum (11), Oud-Assendorp (6), Bagijneweide (5), Ittersumerlanden (3), Aa-landen-Midden (1), Geldermalsen Middengebied (1)
De 1 meest populaire bedrijventerreinen in de omgeving om een winkelruimte te huren zijn: De Wielen (1)
Over Zwolle
Zwolle heeft een oppervlakte van 119,38 km2 met ruim 129.840 inwoners.
Waar in Zwolle staat ruimte te huur of te koop?
Ceintuurbaan (13) , Baileystraat (11) , Diezerstraat (10) , Telfordstraat (10) , Assendorperstraat (9) , Faradaystraat (8) , Rieteweg (8) , Vechtstraat (8) , Newtonweg (7) , George Stephensonstraat (6) in totaal van 0 straten
Vragen of opmerkingen
Zoekt u een winkelruimte te huur in Zwolle? We bieden u nu een unieke ruimte aan te Zwolle. Deze winkel heeft een totale beschikbare oppervlakte van 60 m² te huur en ligt op Luttekestraat 34 in Zwolle.
Heeft u interesse in dit object, vul dan het aanvraagformulier in. Wij brengen u rechtstreeks in contact met de makelaar of eigenaar van de ruimte zodat u direct een bezichtiging kunt inplannen of extra informatie kunt opvragen. Deze info niet juist?
Klik hier indien bovenstaande informatie niet juist is en u ons hiervan op de hoogte wilt stellen.